Parque do Rosal
Conteúdo atualizado em12 de fevereiro de 2026às 14:10
Passar para o Conteúdo Principal
Top![]()
![]()
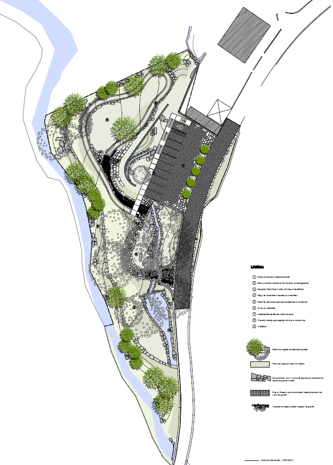
A Requalificação do Parque do Rosal compreende a valorização de uma área de acesso público para recreio e lazer, com aproximadamente 3.900,00m2, circunscrito à Rua do Rosal e Ribeiro do Rosal
O parque localiza-se a nascente da cidade de Santo Tirso, no ‘coração’ da freguesia de Rebordões, no vale agrícola da vila Rebordões, que se desenvolve em socalcos com pendentes suaves.
Este parque possui de uma área de merendas, equipamento e mobiliário urbano que convidam ao descanso e lazer; podem serem feitas caminhadas e apreciar o conjunto arbóreo autóctone de carvalhos alvarinhos.
O espaço convida ao usufruto da natureza envolvente e do corredor ribeirinho do Rosal, onde se inclui a presa e rego de consortes e as espécies ripícolas em crescimento.
O parque dispõe de uma zona de anfiteatro ‘natural’, na transição suave para o espaço verde e central ao parque, em ‘clareira aberta’, para recreio livre e estadia informal.
Dispõe também de instalações sanitárias e sala de apoio ao parque.
Neste espaço verde, foi criada uma praça de entrada e zona de estacionamento contígua à Rua do Rosal, que se estende, à cota alta sobre todo o parque, como uma grande plataforma multifuncional, para a realização de atividades/eventos temáticos diversos.
![]()